Andreas Heinrichs
Geschäftsinhaber
Attraktive Gewerbefläche in Freising – Vielseitig Nutzbare Räume in der Altstadt - Sofort Verfügbar
Objekt ID: 1ZG007
85354 Freising
Unsere Infobox
Objektnummer: 1ZG007
Objektart: zur Miete
Adresse: 85354 Freising
Kaltmiete:
Flächen & Eckdaten
Ihre Gesamtkosten
Allgemeine Informationen
Beschreibung
Wir freuen uns, Ihnen eine attraktive Gelegenheit zur Anmietung einer Gewerbeimmobilie in der beliebten Stadt Freising präsentieren zu dürfen. Diese Immobilie bietet Ihnen eine hervorragende Lage und zahlreiche Vorteile, die Ihr Geschäft bereichern können.
Diese flexibel nutzbare Gewerbeimmobilie befindet sich in einem Seitenarm der Ziegelgasse in der Freisinger Innenstadt/Altstadt. Die zentrale Lage sorgt für gute Erreichbarkeit und Sichtbarkeit für Ihre Kunden und Mitarbeiter. Profitieren Sie von der lebhaften Umgebung und der Nähe zu zahlreichen Geschäften und Dienstleistungen.
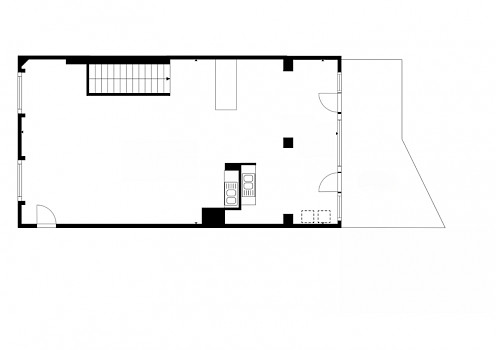
Die Immobilie erstreckt sich über zwei Etagen und bietet insgesamt ca. 149 m² flexibel nutzbare Fläche. Im Erdgeschoss stehen ca. 89 m² zur Verfügung, die durch große Fensterfronten zur Straße und zum Innenhof ein helles und einladendes Ambiente schaffen. Ein großer Raum mit integrierter Küche ermöglicht vielfältige Nutzungsmöglichkeiten, sei es für Büroräume, Einzelhandel oder gastronomische Zwecke.
Das Untergeschoss bietet zusätzliche ca. 60 m², ideal als Lagerraum oder für Mitarbeiter- und Gästetoiletten. Sämtliche Raumaufteilungen sind in Abstimmung mit dem Vermieter flexibel gestaltbar, sodass Sie die Immobilie nach Ihren individuellen Bedürfnissen anpassen können.
Ein weiteres Highlight dieser Immobilie ist der Innenhof mit Terrasse, der eine angenehme Atmosphäre für Pausen oder informelle Besprechungen bietet. Die Immobilie ist mit einem Mitarbeiter-WC, einem Gäste-WC und einem Lagerraum im Untergeschoss ausgestattet und erfüllt somit alle Anforderungen an eine moderne Gewerbeeinheit.
Die Kaltmiete beträgt 1.450 € zuzüglich 300 € Nebenkosten. Je nach Bedarf wird eine Kaution von 2 bis 5 Kaltmieten fällig. Die Immobilie ist sofort verfügbar und wartet nur darauf, von Ihnen in ein florierendes Geschäft verwandelt zu werden.
Vereinbaren Sie noch heute einen Besichtigungstermin und überzeugen Sie sich selbst von den Vorzügen dieser Gewerbeimmobilie. Die Immobilie kann jederzeit besichtigt werden, und ein 3D-Rundgang steht Ihnen zur Verfügung, der Ihnen alle Details genau zeigt. Wir freuen uns auf Ihre Kontaktaufnahme und stehen Ihnen für weitere Informationen jederzeit zur Verfügung.
Eckdaten & Ausstattung
+ vielfältige Gewerberäume
+ Freisinger Innenstadt/Altstadt
+ vielseitige Nutzungsmöglichkeiten
+ Seitenstraße (Ziegelgasse)
+ Erdgeschoss ca. 89 m² Fläche
+ Untergeschoss ca. 60 m² Fläche
+ alles veränderbar vom Mieter in Abstimmung
+ großer Raum im EG mit Küche
+ riesige Fensterfronten zur Straße + Innenhof
+ Innenhof mit Terrasse
+ Mitarbeiter-WC, Gäste-WC und Lagerraum im KG
+ 2 bis 5 Kaltmieten Kaution, je nach Bedarf
+ keine Mehrwertsteuer-Optierung
+ sofort verfügbar
Nachbarschaft
In der lebendigen Innenstadt von Freising, einem Ort, der Geschichte und Kultur meisterhaft vereint, befinden sich diese gewerblichen Räume. Eingebettet in das historische Flair der Altstadt, bieten diese Räumlichkeiten die Gelegenheit am pulsierenden Stadtleben teilzuhaben. Freising, bekannt für seine malerischen Gassen und beeindruckenden Baudenkmäler, schafft eine charmante Kulisse, die Besucher und Einheimische gleichermaßen anzieht.
Die Immobilie liegt in einem besonders belebten Teil der Stadt, umgeben von kleinen Boutiquen, Kunstgalerien und gemütlichen Cafés. Diese dynamische Nachbarschaft ist ein Magnet für Kulturbegeisterte und Genießer, die Qualität und Authentizität schätzen. Das Restaurant profitiert von einer regen Fußgängerzone, die eine hohe Frequenz an potenziellen Kunden verspricht.
Lageplan
Wichtige Informationen
Es liegt ein Energiebedarfsausweis vor.
Dieser ist gültig bis 13.6.2030.
Endenergiebedarf für die Wärme beträgt 130.00 kwh/(m²*a).
Endenergiebedarf für den Strom beträgt 40.00 kwh/(m²*a).
Wesentlicher Energieträger der Heizung ist Erdgas leicht.
Sehr geehrter Mietinteressent,
bitte kontaktieren Sie uns erst über das Kontaktformular "Anbieter kontaktieren" des Immobilienportals oder unserer Webseite/Facebook-Seite. Bitte geben Sie hier folgende Daten an:
+ komplette Anschrift
+ eine E-Mail-Adresse und
+ eine Telefonnummer
Dieses Exposé zeigt Ihnen einen ersten groben Überblick über diese Immobilie. Fordern Sie daher, mit Ihren vollständigen Daten, unser umfangreiches Exposé an. Dort finden Sie alle weiteren Informationen zu dieser Immobilie wie z. B. Adresse, Objektbeschreibungen und weiteren Innenbilder. Sobald Sie das Exposé erhalten haben, können wir gerne einen Besichtigungstermin vereinbaren.
Für die Richtigkeit unserer Angaben übernehmen wir keine Haftung. Wir versichern jedoch, dieses Angebot nach bestem Wissen und den uns übermittelten Angaben erstellt zu haben. Der Grundrissplan ist zur Maßentnahme nicht geeignet. Bitte um Beachtung, dass teilweise mit Weitwinkel fotografiert worden ist.

