Andreas Heinrichs
Geschäftsinhaber
GEMÜTLICH & HELL - 2,5-Zimmer-Wohnung im 1.OG mit modernem Grundriss
Objekt ID: 81004/3/26
85053 Ingolstadt
Unsere Infobox
Objektnummer: 81004/3/26
Objektart: Etagenwohnung zur Miete
Adresse: 85053 Ingolstadt
Kaltmiete:
Flächen & Eckdaten
Ihre Gesamtkosten
Allgemeine Informationen
Beschreibung
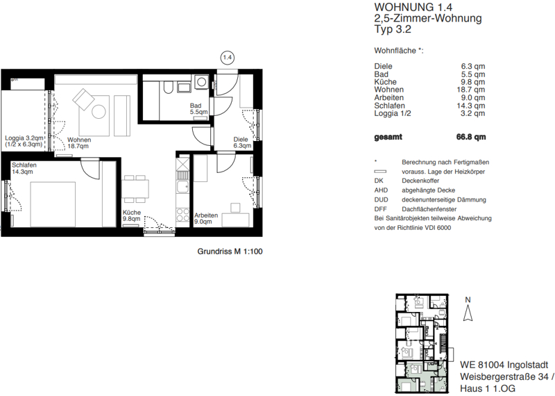
Die angebotene Mietwohnung befindet sich im 1. Obergeschoss der Weisbergerstraße 34. Diese moderne und individuelle 2,5-Zimmerwohnung verfügt über ca. 67 m² Wohnfläche. Ein Tiefgaragenstellplatz (kein Duplex) ist vorhanden. Auf Wunsch kann ein weiterer Stellplatz angemietet werden. Ein Aufzug ist nicht vorhanden.
Der Eingangsbereich verfügt über einen modernen Fliesenboden. Das innenliegende Badezimmer, ebenfalls mit Fliesenboden ausgestattet, bietet Ihnen eine Badewanne mit WC und Waschbecken. Auch ein Waschmaschinenanschluss ist vorhanden.
Der offen gestaltete Wohnbereich mit Küchen- und Essbereich ist ca. 29 m² groß, der Schlafbereich ca. 14 m². Ein weiterer Raum mit ca. 9 m² steht zur Verfügung. Im gesamten Bereich ist ein hochwertiger Designboden (Tarkett) im Walnussfarbton verlegt. Bad und Flurbereich sind gefliest. Zudem verfügt die Wohnung über eine nach Westen ausgerichtete Loggia.
Die großzügigen Fensterflächen (überwiegend Fenstertüren) sorgen für ein helles Wohnambiente. In den Obergeschossen sind die Fenstertüren mit französischen Balkongeländern versehen. Sämtliche Fenster sind mit Aufsatzrollladen abzudunkeln.
Die Räume sind zudem mit zahlreichen Steckdosen ausgestattet und einem Raumthermostat. In jedem Wohn- und Schlafbereich befindet sich eine LAN-Dose. Leerdosen für weitere LAN-Anschlüsse sind vorhanden. Für diese Wohnanlage ist ausschließlich der Internetanbieter comingolstadt wählbar.
Die gesamte Wohnanlage verfügt über eine moderne Zentralheizung (Heizkörper). Die Warmwasseraufbereitung wird mittels eines Blockheizkraftwerks mit Gasversorgung betrieben. Jede Wohnung verfügt noch über ein separates Kellerabteil und mindestens einen Tiefgaragenstellplatz (kein Duplex). Pro Stellplatz ist ein Handsender verfügbar.
Die Einbauküche kann auf Wunsch vom Vormieter für 1.750 € übernommen werden.
Eckdaten & Ausstattung
+ zentrumsnahe Lage in Ingolstadt, Weisbergerstraße
+ helle und moderne 2,5-Zimmerwohnung im 1. OG ohne Aufzug
+ ca. 67 m² Wohnfläche in der Wohnung
+ Wohnraum sowie Schlafräume mit hochwertigem Designboden
+ Badezimmer und Flurbereich mit Fliesenboden
+ Badezimmer mit Wanne, WC, Waschbecken und WM-Anschluss
+ Loggia nach Westen ausgerichtet
+ offenes und modernes Wohnkonzept (Küche/Essen/Wohnen)
+ praktische Schließanlage: 1 Schlüssel für alles
+ mechanische Fensterfalzlüfter sowie elektrische Badlüftung (nicht steuerbar)
+ Tiefgaragenstellplatz mit Handsender (kein Duplex)
+ Zahlreiche Abstellmöglichkeiten für Fahrräder (teilweise abschließbar)
+ Medienversorgung über Kabel-Glasfaser
+ moderne Zentralheizung / Blockheizkraftwerk über Gas
+ EBK zur Ablöse auf Wunsch
Nachbarschaft
Die Weisbergerstraße liegt im Südosten Ingolstadts. Sie bietet alle notwendigen Einrichtungen für den täglichen Bedarf. Die Verbindung zu öffentlichen Verkehrsmitteln ist ausgezeichnet.
+ Zentrum von Ingolstadt: etwa 3,4 km entfernt
+ Anschlussstelle zur Autobahn A9: 2,7 km entfernt
+ Hauptbahnhof (Richtungen München, Nürnberg): ca. 1,5 km entfernt
+ Nahversorgung: EDEKA etwa 600 m entfernt, Kaufland rund 2,8 km entfernt
+ Industriegebiet Ingolstadt Süd ca. 2,4 km entfernt
+ Freizeitaktivitäten im Radius von etwa 3 km: Saturn-Arena, Donautherme, Donau uvm.
+ Medizinische Einrichtungen und Zentren in einem Umkreis von ungefähr 3 km
Lageplan
Wichtige Informationen
Es liegt ein Energiebedarfsausweis vor.
Dieser ist gültig bis 17.8.2024.
Endenergiebedarf beträgt 52.60 kwh/(m²*a).
Wesentlicher Energieträger der Heizung ist Gas.
Das Baujahr des Objekts lt. Energieausweis ist 2014.
Die Energieeffizienzklasse ist B.
Sehr geehrter Mietinteressent,
bitte kontaktieren Sie uns erst über das Kontaktformular "Anbieter kontaktieren" des Immobilienportals oder unserer Webseite/Facebook-Seite. Bitte geben Sie hier folgende Daten an:
+ komplette Anschrift
+ eine E-Mail-Adresse und
+ eine Telefonnummer
Dieses Exposé zeigt Ihnen einen ersten groben Überblick über diese Immobilie. Fordern Sie daher, mit Ihren vollständigen Daten, unser umfangreiches Exposé an. Dort finden Sie alle weiteren Informationen zu dieser Immobilie wie z. B. Adresse, Objektbeschreibungen und weiteren Innenbilder. Sobald Sie das Exposé erhalten haben, können wir gerne einen Besichtigungstermin vereinbaren.
Für die Richtigkeit unserer Angaben übernehmen wir keine Haftung. Wir versichern jedoch, dieses Angebot nach bestem Wissen und den uns übermittelten Angaben erstellt zu haben. Der Grundrissplan ist zur Maßentnahme nicht geeignet. Bitte um Beachtung, dass teilweise mit Weitwinkel fotografiert worden ist.

