Andreas Heinrichs
Geschäftsinhaber
Großzügige Familienwohnung - Massiv gebaut und nachhaltig
Objekt ID: 2BJ006-1
85419 Mauern
Unsere Infobox
Objektnummer: 2BJ006-1
Objektart: Erdgeschosswohnung zum Kauf
Adresse: 85419 Mauern
Preis:
Flächen & Eckdaten
Ihre Gesamtkosten
2,38 % inkl. MwSt. vom beurkundeten Kaufpreis
Allgemeine Informationen
Beschreibung
Verwirklichen Sie Ihren Wohntraum!
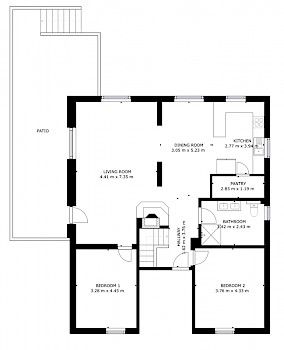
Erleben Sie ein Zuhause, das all Ihre Wünsche erfüllt! Diese beeindruckende Eigentumswohnung in einem modernen Mehrfamilienhaus in Mauern lässt keine Wünsche offen. Mit einer großzügigen Wohnfläche von ca. 167 m², verteilt auf zwei Ebenen (Erdgeschoss und Souterrain), bietet dieses Heim viel Platz für die ganze Familie. Vier Schlaf-, Kinder- oder Arbeitszimmer, ein lichtdurchflutetes Wohnzimmer und eine moderne Einbauküche laden zum Wohlfühlen ein. Die massiven Ziegelwände und die hochwertige Dämmung garantieren nachhaltiges und energiesparendes Wohnen.
Stellen Sie sich vor, wie Sie auf der überdachten Terrasse mit Pergola Ihren Morgenkaffee genießen, während Ihre Kinder im großzügigen Garten spielen. Die hochwertige Ausstattung, wie ein gemauerter Holzofen, Fußbodenheizung und dreifach verglaste Fenster, sorgt für ein behagliches Wohnklima. Zwei luxuriöse Badezimmer und eine praktische Speisekammer runden das Angebot ab.
MEHR INFORMATIONEN ZU DIESER IMMOBILIE? FORDERN SIE UNSER UMFANGREICHES PDF-EXPOSÈ AN. EINFACH "ANBIETER KONTAKTIEREN".
Eckdaten & Ausstattung
+ Erstaunlich viel Platz für die gesamte Familie
+ massive & nachhaltige Bauweise mit 30 cm Ziegel + 14 cm Dämmung
+ Wohnung ist sofort bezugsfrei oder kann vermietet werden
+ modernes Mehrfamilienhaus mit nur drei Einheiten
+ 5-Zimmerwohnung in Mauern im Erdgeschoss + Souterrain
+ Eigentumswohnung über zwei Ebenen (EG und UG)
+ insgesamt 4 Schlaf-, Kinder- oder Arbeitszimmer
+ Baujahr 2013, Erstbezug/Fertigstellung 2015
+ ca. 167 m² Wohnfläche im EG und UG
+ Erdgeschoss mit ca. 114 m² Wohnfläche inkl. Terrasse (1/4)
+ Untergeschoss mit ca. 51 m² Wohnfläche + 38 m² Nutzfläche
+ Wohn- und Nutzfläche in beiden Geschossen ca. 205 m²
+ ca. 240 m² Gartenfläche
MEHR INFORMATIONEN ZU DIESER IMMOBILIE? FORDERN SIE UNSER UMFANGREICHES PDF-EXPOSÈ AN. EINFACH "ANBIETER KONTAKTIEREN".
Nachbarschaft
Mauern, liebevoll als "Das Tor zur Hallertau" bezeichnet, ist ideal für Familien, die in einer lebendigen Gemeinschaft leben möchten. Die Nähe zum größten Hopfenanbaugebiet Deutschlands prägt den einzigartigen Charakter des Ortes.
Die dominante mittlere Altersgruppe macht Mauern besonders familienfreundlich. Das kontinuierliche Bevölkerungswachstum in den letzten zehn Jahren, insbesondere durch Zuzug, unterstreicht die Attraktivität des Dorfes.
Mauern bietet alles, was Familien brauchen: Drei Kindertageseinrichtungen und eine Grundschule sorgen für den perfekten Bildungsstart. Die umfassende Infrastruktur mit Supermärkten, Geschäften, einer Apotheke und einer Arztpraxis stellt sicher, dass Familien alles Notwendige in unmittelbarer Nähe haben.
Die umliegenden Kirchdörfer wie Dünzling, Enghausen und Schwarzersdorf sowie die verstreuten Weiler und Höfe fügen sich harmonisch in die Gemeinschaft ein und bieten vielfältige Wohnmöglichkeiten.
Moosburg an der Isar, nur 8 Autominuten entfernt, erweitert das Angebot mit weiteren Geschäften und schulischen Einrichtungen. Freising und Landshut sind jeweils nur eine halbe Stunde entfernt. Die guten Busverbindungen bieten eine praktische Alternative für den täglichen Pendelverkehr.
Lageplan
Wichtige Informationen
Es liegt ein Energieverbrauchsausweis vor.
Dieser ist gültig bis 27.9.2033.
Endenergieverbrauch beträgt 34.89 kwh/(m²*a).
Wesentlicher Energieträger der Heizung ist Gas.
Das Baujahr des Objekts lt. Energieausweis ist 2013.
Die Energieeffizienzklasse ist A.
Sehr geehrte/r Kaufinteressent/in,
wir freuen uns über Ihr Interesse an unserer Immobilie. Bevor wir Ihnen weitere Details präsentieren können, bitten wir Sie, uns über das Kontaktformular des Immobilienportals oder über unsere Webseite schnell und einfach zu kontaktieren. Für eine effiziente und zügige Bearbeitung Ihrer Anfrage benötigen wir folgende Angaben von Ihnen:
+ Ihre komplette Anschrift,
+ eine gültige E-Mail-Adresse und
+ eine Telefonnummer, unter der wir Sie erreichen können.
Das hier vorliegende Exposé bietet Ihnen einen ersten Überblick über die Immobilie. Um einen vollständigen Gesamteindruck zu erhalten und tiefergehende Informationen, wie z. B. die genaue Adresse, ausführliche Objektbeschreibungen und weitere Fotos zu sehen, fordern Sie unser detailliertes Exposé an.
Nach Erhalt (Download) des Exposés stehen wir Ihnen gerne für die Vereinbarung eines Besichtigungstermins zur Verfügung. Sie können uns hierfür telefonisch (Montag bis Freitag von 09:00 bis 17:00 Uhr) oder per E-Mail kontaktieren.
Bitte beachten Sie, dass wir korrekte und aktuelle Informationen bereitstellen, jedoch keine Haftung für die Richtigkeit unserer Angaben übernehmen können. Dieses Angebot wurde jedoch nach bestem Wissen und basierend auf den uns vorliegenden Informationen erstellt.
Der beigefügte Grundrissplan dient lediglich zur Veranschaulichung und ist nicht maßstabsgetreu. Des Weiteren möchten wir Sie darauf hinweisen, dass einige der Fotos mit einem Weitwinkelobjektiv aufgenommen wurden, um Ihnen einen umfassenden Eindruck der Räume zu vermitteln.
Es ist uns wichtig, transparent zu agieren. Daher möchten wir Sie darauf hinweisen, dass wir auch für den anderen Vertragspartner (Verkäuferseite) entgeltlich bzw. provisionspflichtig in gleicher Höhe tätig sind.


