Andreas Heinrichs
Geschäftsinhaber
Investment in München-Am Westkreuz: Nachhaltig vermietete Traumwohnung mit Südbalkon und Mietsteigerungspotenzial
Objekt ID: 2RB030-10
81243 München
Unsere Infobox
Objektnummer: 2RB030-10
Objektart: Etagenwohnung zum Kauf
Adresse: 81243 München
Preis:
Flächen & Eckdaten
Ihre Gesamtkosten
2,98 % inkl. MwSt. vom beurkundeten Kaufpreis
Allgemeine Informationen
Beschreibung
In der dynamischen und begehrten Lage von München-Am Westkreuz erwartet Investoren eine außergewöhnliche Gelegenheit: Eine vollständig renovierte Eigentumswohnung in einer gepflegten Wohnanlage. Diese besondere Immobilie, die seit Oktober 2021 verlässlich vermietet ist, generiert derzeit eine Kaltmiete von 1.350 €. Angesichts der hohen Nachfrage nach Wohnraum in München und der guten Lage, bietet diese Wohnung ein enormes Potenzial für eine Mietpreissteigerung in der Zukunft, was sie zu einem attraktiven Investment macht.
MEHR INFORMATIONEN ZU DIESER IMMOBILIE? FORDERN SIE UNSER UMFANGREICHES PDF-EXPOSÈ AN. EINFACH "NACHRICHT / EXPOSÉ SENDEN".
Eckdaten & Ausstattung
+ vollständig renovierte Eigentumswohnung
+ gepflegte Wohnanlage
+ vermietet seit Oktober 2021
+ Kaltmiete derzeit bei 1.350 €
+ 29,5 / 1.000 Miteigentumsanteile
+ Wohnen in München-Am Westkreuz
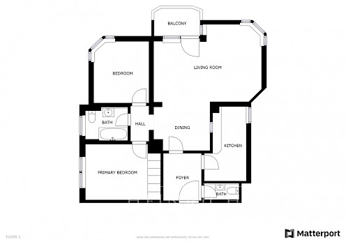
+ ca. 88 m² Wohnfläche
+ 3-Zimmerwohnung im 3. OG
+ Aufzug vorhanden und großes Treppenhaus
+ Balkon nach Süden ausgerichtet
+ zwei Schlafzimmer mit viel Licht
+ Rollläden an den doppelt verglasten Holz-Fenstern
+ Badezimmer mit Wanne, WC, WM-Anschluss
+ separates Gäste-WC im Flurbereich
+ Küche mit Durchreiche (ohne EBK)
+ Parkett-/Laminatboden in allen Wohn- und Schlafbereichen
+ Zentralheizung (Heizkörper) mittels Gas
+ Kellerabteil ist vorhanden
+ kein Stellplatz inbegriffen
Nachbarschaft
Für alle, die im Grünen am Rande der Stadt leben wollen und trotzdem die Nähe zur City brauchen, ist diese Immobilie genau richtig. Die Lage bietet gute Verkehrsverbindungen zum Bus und zur S-Bahn.
+ Park: Freizeitzentrum Aubing Ost ist nur 5 Minuten mit dem Fahrrad entfernt
+ Einkaufsmöglichkeiten wie LIDL und dm in ca. 11 & REWE in ca. 8 Gehminuten
+ S-Bahnhaltestelle "Westkreuz" mit der Linie S6/S8 ist ca. 10 Gehminuten
+ Bus-Haltestelle "Tettnanger Straße" mit der Linie 157 ist in ca. 3 Minuten zu Fuß
+ Bus-Haltestelle "Ravensburger Ring" mit der Linie 57/162 ist in ca. 8 Gehminuten
In unmittelbarer Nähe befinden sich vielfältige Einkaufsmöglichkeiten, Schulen, Sportanlagen, auch die Helios Klinik München West sowie 2 Apotheken. Die vielen Grünflächen (Parks, Spielplätze u. v. m.) in der Umgebung bestätigen den hohen Erholungs- u. Freizeitwert.
Lageplan
Wichtige Informationen
Es liegt ein Energieverbrauchsausweis vor.
Dieser ist gültig bis 13.2.2028.
Endenergieverbrauch beträgt 91.00 kwh/(m²*a).
Wesentlicher Energieträger der Heizung ist Gas.
Das Baujahr des Objekts lt. Energieausweis ist 1981.
Die Energieeffizienzklasse ist C.
Sehr geehrte/r Kaufinteressent/in,
wir freuen uns über Ihr Interesse an unserer Immobilie. Bevor wir Ihnen weitere Details präsentieren können, bitten wir Sie, uns über das Kontaktformular des Immobilienportals oder über unsere Webseite schnell und einfach zu kontaktieren. Für eine effiziente und zügige Bearbeitung Ihrer Anfrage benötigen wir folgende Angaben von Ihnen:
•Ihre komplette Anschrift,
•eine gültige E-Mail-Adresse und
•eine Telefonnummer, unter der wir Sie erreichen können.
Das hier vorliegende Exposé bietet Ihnen einen ersten Überblick über die Immobilie. Um einen vollständigen Gesamteindruck zu erhalten und tiefergehende Informationen, wie z. B. die genaue Adresse, ausführliche Objektbeschreibungen und weitere Fotos zu sehen, fordern Sie unser detailliertes Exposé an.
Nach Erhalt (Download) des Exposés stehen wir Ihnen gerne für die Vereinbarung eines Besichtigungstermins zur Verfügung. Sie können uns hierfür telefonisch (Montag bis Freitag von 09:00 bis 17:00 Uhr) oder per E-Mail kontaktieren.
Bitte beachten Sie, dass wir korrekte und aktuelle Informationen bereitstellen, jedoch keine Haftung für die Richtigkeit unserer Angaben übernehmen können. Dieses Angebot wurde jedoch nach bestem Wissen und basierend auf den uns vorliegenden Informationen erstellt. Der beigefügte Grundrissplan dient lediglich zur Veranschaulichung und ist nicht maßstabsgetreu. Des Weiteren möchten wir Sie darauf hinweisen, dass einige der Fotos mit einem Weitwinkelobjektiv aufgenommen wurden, um Ihnen einen umfassenden Eindruck der Räume zu vermitteln.
HINWEIS ZUR PROVISION & DOPPELTÄTIGKEIT:
Es ist uns wichtig, transparent zu agieren. Daher möchten wir Sie darauf hinweisen, dass wir auch für den anderen Vertragspartner (Verkäuferseite) entgeltlich bzw. provisionspflichtig in gleicher Höhe tätig sind.
