Andreas Heinrichs
Geschäftsinhaber
Traumwohnung für Familien: 4-Zimmer-Komfort in Wolnzach mit Panoramablick
Objekt ID: 2LL020
85283 Wolnzach
Unsere Infobox
Objektnummer: 2LL020
Objektart: Dachgeschosswohnung zum Kauf
Adresse: 85283 Wolnzach
Preis:
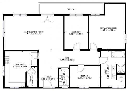
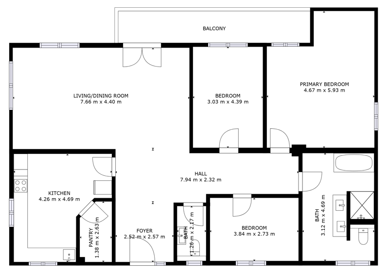
Flächen & Eckdaten
Ihre Gesamtkosten
3,57 % inkl. MwSt. vom beurkundeten Kaufpreis
Allgemeine Informationen
Beschreibung
Willkommen in Ihrem neuen Zuhause in Wolnzach, einem modernen und einzigartigen Wohnparadies, erbaut 2018 in umweltfreundlicher Holzständerbauweise. Diese charmante 4-Zimmer-Eigentumswohnung im Obergeschoss eines liebevoll erhaltenen Gebäudes aus 1964 bietet Familien einen idealen Rückzugsort mit traumhaftem Ausblick über die malerische Umgebung.
Treten Sie ein über die separate Außentreppe und erleben Sie den großzügigen Wohn- und Essbereich, der sich auf einen sonnigen Süd-Ost Balkon mit Blick über Wolnzach öffnet. Die sichtbaren Holzbalkendecken in allen Räumen schaffen eine warme und einladende Atmosphäre, ergänzt durch hochwertige Bodenbeläge in Parkett, Laminat und Fliesen. Bei der Auswahl der Sanitärausstattungen wurde besonderer Wert auf Qualität und Design gelegt: Eine begehbare, geflieste Dusche mit Regenwasserduschkopf und Wandheizung sowie ein moderner Doppelwaschtisch mit Spiegel sorgen für täglichen Komfort.
Die Küche ist ein wahrer Traum für jede Familie, ausgestattet mit hochwertigen SMEG-Geräten und einer praktischen Speisekammer. Der helle Flur verbindet harmonisch alle Wohn- und Schlafräume, darunter zwei gemütliche Kinderzimmer und ein geräumiges Schlafzimmer.
WEITERE DATEN FINDEN SIE IN UNSEREM EXPOSÉ. JETZT SCHNELL ANBIETER KONTAKTIEREN.
Eckdaten & Ausstattung
+ moderne und einmalige Eigentumswohnung
+ Leben in Wolnzach mit toller Aussicht
+ großzügige 4-Zimmerwohnung im Obergeschoss
+ Zugang über separater Außentreppe ins Obergeschoss
+ Eigentumswohnung ist 2018 in Holzständerbauweise erbaut worden
+ Grund-Gebäude (KG und EG) ist 1964 erbaut worden
+ Eigentümer haben beim Bau auf Qualität und Natürlichkeit geachtet
+ zugewiesene Gartenfläche gem. Teilungserklärung mit rund 140 m²
+ großer Wohn- und Essbereich mit Zugang zum Balkon
+ Süd-Ost Balkon mit Blick über Wolnzach
+ sichtbare Holzbalkendecke in allen Räumen
+ hochwertige Böden in allen Räumen (Parkett, Laminat, Fliesen)
+ beste Auswahl bei den Sanitärausstattungen
+ Sicherheits-Eingangstüre mit Fingerprint-Einlass
+ Sanitär- und Stromleitungen sind bei der Aufstockung erneuert worden
+ 3 fest zugeordnete Stellplätze vor dem Haus
+ Wallbox zum Laden des E-Auto
+ Sondernutzungsrechte an umlaufender Gartenfläche
+ Ölheizung ist aus dem Jahr 1998
+ elektrische Vorbaurollläden an allen Fenstern
WEITERE DATEN FINDEN SIE IN UNSEREM EXPOSÉ. JETZT SCHNELL ANBIETER KONTAKTIEREN.
Nachbarschaft
+ Kindergarten in ca. 2 km Entfernung
+ Grundschule 3 Minuten mit dem Auto
+ Hallertau Gymnasium 6 Minuten mit dem Auto
+ Einkaufsmöglichkeiten in ca. 2 km Entfernung
+ Apotheke in ca. 800 m Entfernung
+ Markt Wolnzach ca. 1 km entfernt (3 Minuten mit dem Auto)
+ Stadt Pfaffenhofen ca. 15,9 km entfernt (19 Minuten mit dem Auto)
+ Stadt Ingolstadt ca. 34 km entfernt (28 Minuten mit dem Auto)
+ Flughafen München ca. 50 km entfernt (36 Minuten mit dem Auto)
+ Stadt München ca. 60,3 km entfernt (45 Minuten mit dem Auto)
+ Autobahnauffahrt zur A93 nach Regensburg ca. 1,6 km entfernt
+ Autobahnauffahrt zur A9 nach München/Nürnberg ca. 5,2 km entfernt
+ Bundesstraße 301 nach Mainburg/Freising ca. 14 km entfernt
+ Bundesstraße 13 nach Ingolstadt/München ca. 14,0 km entfernt
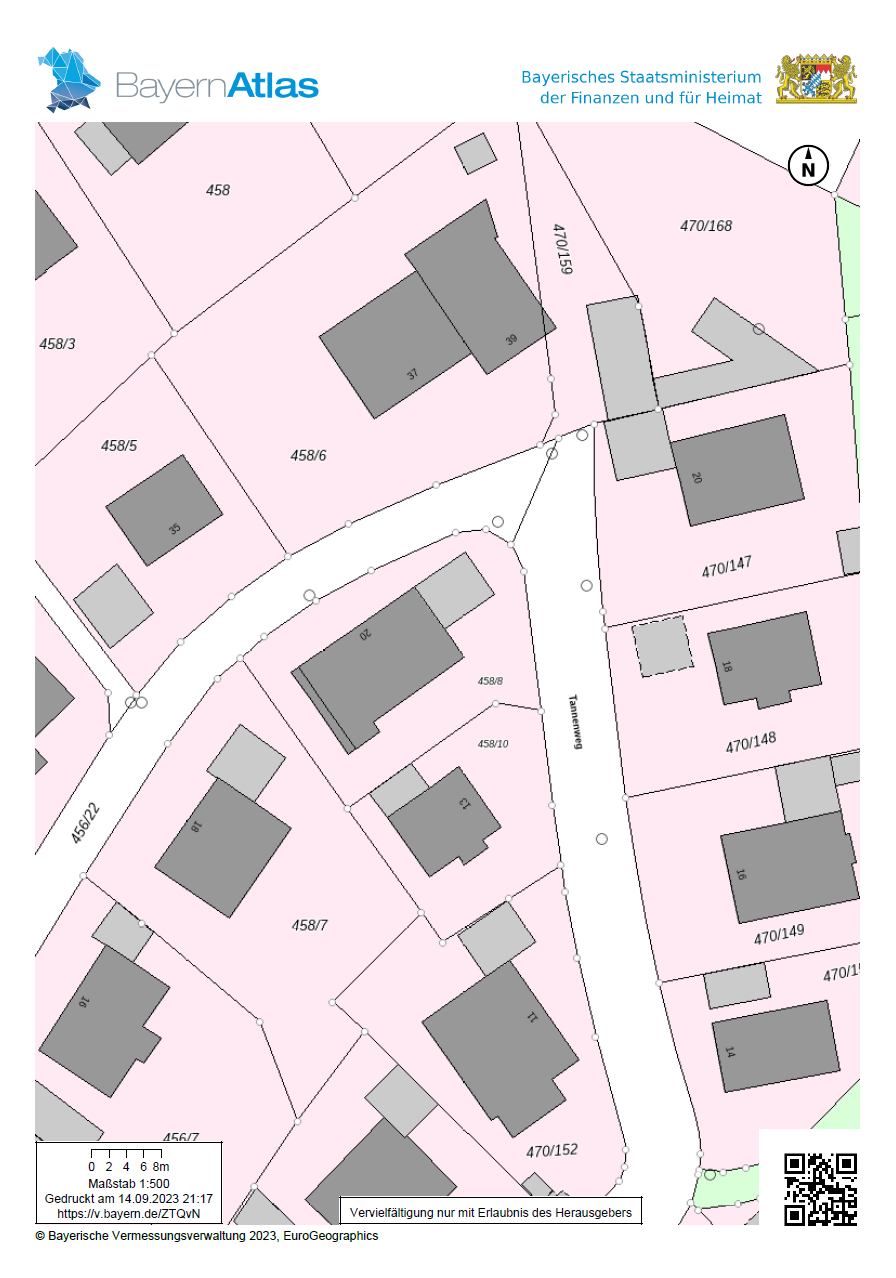
Lageplan
Wichtige Informationen
Es liegt ein Energiebedarfsausweis vor.
Dieser ist gültig bis 24.2.2032.
Endenergiebedarf beträgt 186.80 kwh/(m²*a).
Wesentlicher Energieträger der Heizung ist Öl.
Das Baujahr des Objekts lt. Energieausweis ist 1964.
Die Energieeffizienzklasse ist F.
Sehr geehrter Kaufinteressent,
bitte kontaktieren Sie uns erst über das Kontaktformular "Anbieter kontaktieren" des Immobilienportal oder unserer Webseite/Facebook-Seite. Bitte geben Sie hier folgende Daten an:
+ komplette Anschrift
+ eine E-Mail-Adresse und
+ eine Telefonnummer
Dieses Exposé zeigt Ihnen einen ersten groben Überblick über diese Immobilie. Fordern Sie daher, mit Ihren vollständigen Daten, unser umfangreiches Exposé an. Dort finden Sie alle weiteren Informationen zu dieser Immobilie wie z. B. Adresse, Objektbeschreibungen und weiteren Innenbilder. Sobald Sie das Exposé erhalten haben, können wir gerne einen Besichtigungstermin telefonisch (Montag – Freitag von 09:00 bis 14:00 Uhr) oder per E-Mail vereinbaren.
Für die Richtigkeit unserer Angaben übernehmen wir keine Haftung. Wir versichern jedoch, dieses Angebot nach bestem Wissen und den uns übermittelten Angaben erstellt zu haben. Der Grundrissplan ist zur Maßentnahme nicht geeignet. Bitte um Beachtung, dass teilweise mit Weitwinkel fotografiert worden ist.
HINWEIS ZUR DOPPELTÄTIGKEIT:
Wir weisen darauf hin, dass wir auch für den jeweils anderen Vertragspartner (Verkäuferseite) entgeltlich bzw. provisionspflichtig tätig sind.

